Search The MLS
57560 Waterworks Street
Calumet, MI 49913
$160,067
MLS# 50199230
|
LISTING STATUS Sale Pending w/Contingency |
Location
|
SCHOOL DISTRICT Public Schools of Calumet |
|
COUNTY Houghton |
WATERFRONT No |
|
PROPERTY TAX AREA Calumet Twp (31003) |
|
ROAD ACCESS City/County, Paved Street, Year Round |
|
WATER FEATURES None |
|
LEGAL DESCRIPTION CAC-6 LOT 6 ASSESSOR'S PLAT OF BLUE JACKET LOC. |
Residential Details
|
BEDROOMS 3.00 |
BATHROOMS 1.00 |
|
SQ. FT. (FINISHED) 1200.00 |
ACRES (APPROX.) 0.30 |
|
LOT DIMENSIONS 82x159 |
|
YEAR BUILT (APPROX.) 1920 |
STYLE Conventional Frame |
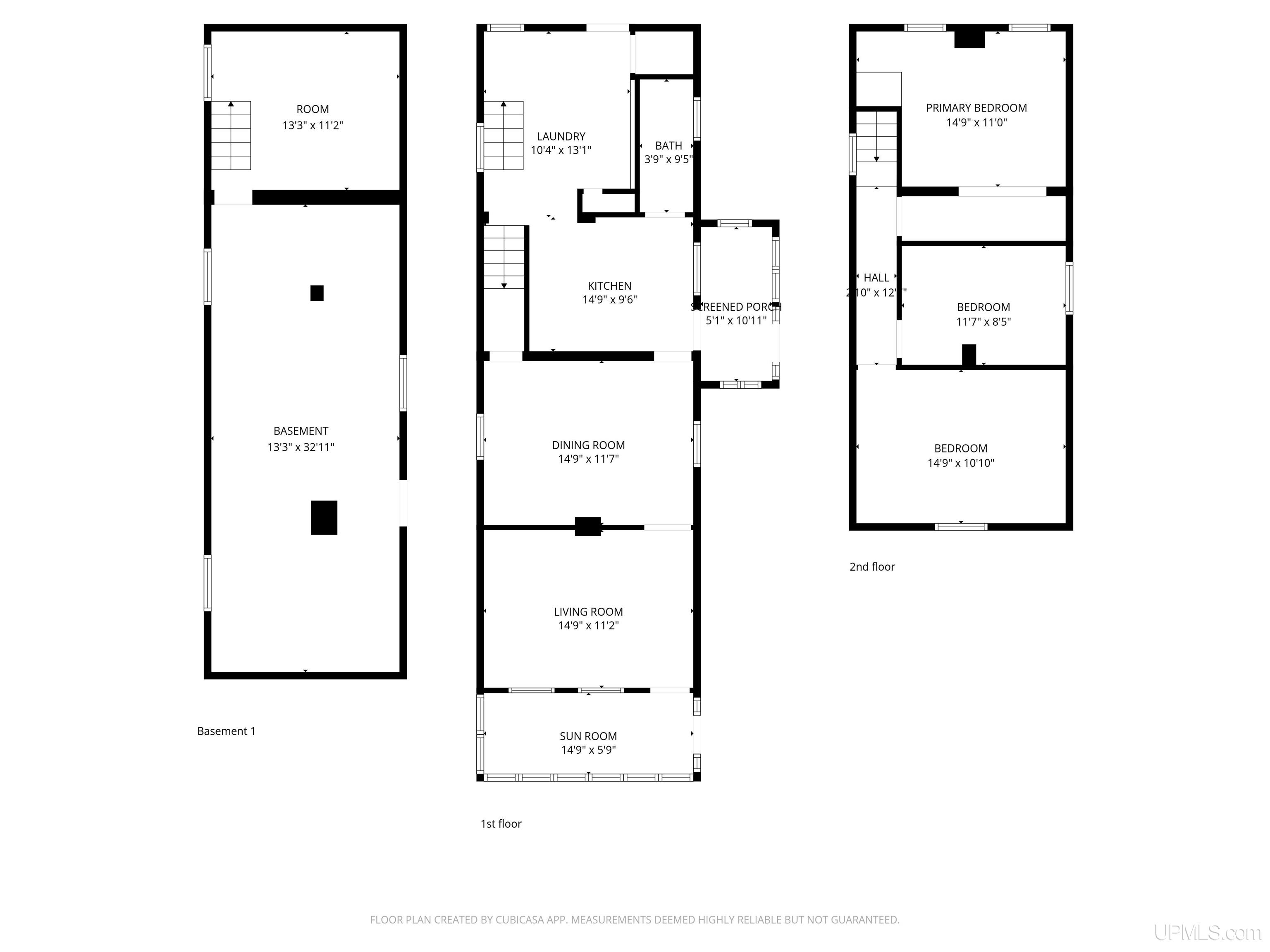
Room Sizes
|
BEDROOM 1 11x15 |
BEDROOM 2 8x12 |
BEDROOM 3 11x15 |
BEDROOM 4 x |
BATHROOM 1 4x10 |
BATHROOM 2 x |
BATHROOM 3 x |
BATHROOM 4 x |
LIVING ROOM 15x11 |
FAMILY ROOM x |
|
DINING ROOM 15x12 |
DINING AREA x |
|
KITCHEN 10x15 |
UTILITY/LAUNDRY 13x10 |
|
OFFICE x |
BASEMENT Yes |
Utilities
|
HEATING Natural Gas: Forced Air |
|
AIR CONDITIONING Ceiling Fan(s),Wall/Window A/C |
|
SEWER Public Sanitary |
|
WATER Public Water |
Building & Construction
|
EXTERIOR CONSTRUCTION Cedar, Wood, Shingle Siding |
|
FOUNDATION Michigan Basement |
|
OUT BUILDINGS Garage(s) |
|
FIREPLACE None |
|
GARAGE Detached Garage, Electric in Garage, Gar Door Opener, Off Street |
|
EXTERIOR FEATURES Deck, Porch, Garden Area |
|
INTERIOR FEATURES DSL Available, Hardwood Floors, Sump Pump, Window Treatment(s) |
|
FEATURED ROOMS Entry, First Floor Laundry, Living Room, Utility/Laundry Room, First Flr Lavatory, Formal Dining Room |
Listing Details
|
LISTING OFFICE Superior Properties -real Estate Sales And Rentals |
|
LISTING AGENT Newman, George |
























